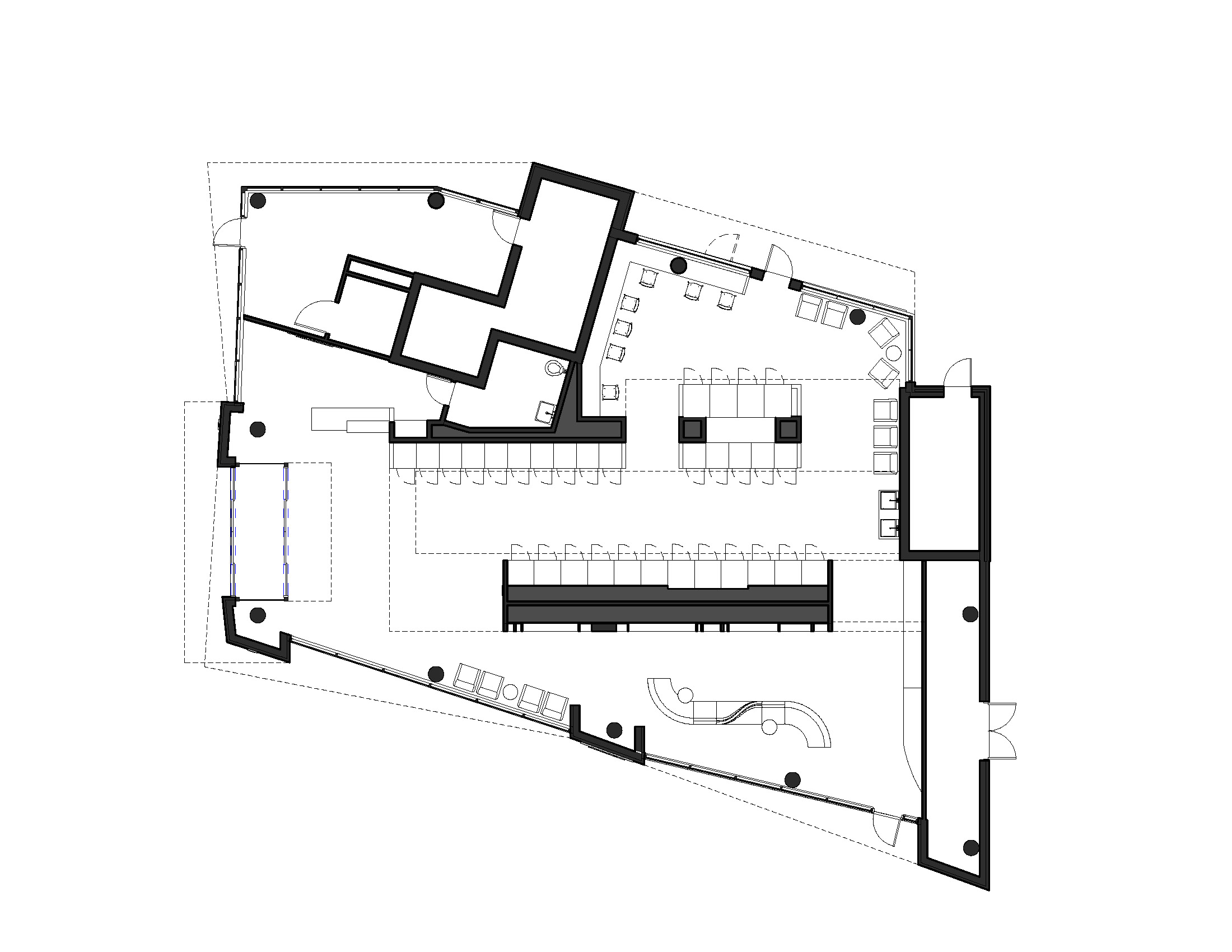
Worsh Community Laundromat
1600 Pleasant Ave, Cincinnati, OH
Interdisciplinary Studio Cumulative Project: Within an existing storefront space, create a not-for-profit laundromat to serve the community of the Over the Rhine area of Cincinnati.
My partners and I worked to craft an interior that not only complemented the task of laundering, but served as a place to relax comfortably. We did not simply craft space, but developed a brand identity for the new laundromat that included promotional materials, iconography, and interior elements ranging from wall graphics to signage.
The goal of Wørsh is to enrich the routine and ritual of the personal chore that is washing one’s clothes. It will draw in users beyond just people that are in need of laundering services through a direct connection to the community and an atmosphere of acceptance communicated through a playful, lighthearted public image.
Spring 2020
![]()
![]()
![]()












